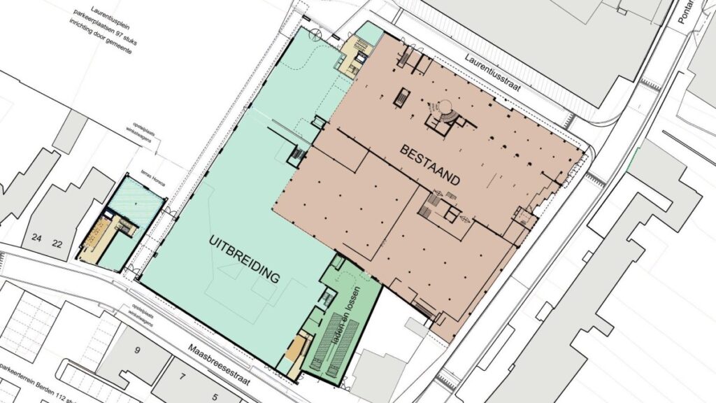
Woningcorporatie Antares, Gemeente Venlo en Berden Mode & Wonen hebben groen licht voor de herontwikkeling van het Laurentiusplein in Blerick. Het ontwerp voor het centrumplan is gemaakt door Quant Architectuur. In de woongebouwen worden voor Antares 25 appartementen gerealiseerd, waarvan er 15 uitkijken op het Laurentiusplein. De overige appartementen zijn gelegen aan de Maasbreesestraat. Op de begane grond en 1e verdieping zijn de commerciële ruimtes gesitueerd.
Centrumplan Blerick
Locatie
Blerick
Status
Gerealiseerd
Opdrachtgever
Antares en Somnus
Architect
Quant architectuur












